design_591182_16510824_2923832_3251d130_thumbnail.png

Professional Design For Your Next Project...

 

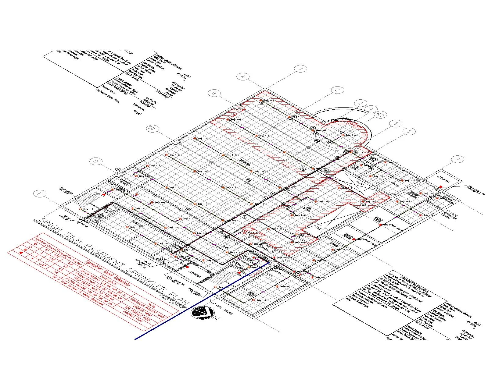
      We have over 10 years of progressive experience as Fire Sprinkler Designer /Engineering, with knowledge of the International Building Code (State Code), ASCE/SEI 7, NFPA 13, 13D, 13R ,ESFR,CMAS,14, 24 and Seismic Protection. We design many types of Sprinkler Systems including wet, dry, pre-action, and deluge, using AutoCad/AutoCadMEP  base HydroCAD software. We are able to design sprinkler systems for all types of buildings including commercial, residential, and high-rise. Our Sprinkler Design System is hydraulically calculated and cost-effective. We are also capable of 2D/3D coordination with "other trade" using the latest version of Revit, MEP, and NavisWork. Additionally, we include Sprinkler Pipe Listing for all of our sprinkler designs, for FREE


 

CALL US FOR CONSULTING

CELL: 631-891-5444

OFFICE: 631-496-9191

EMAIL: sam@seztechfiredesign.com

SINHG SIKH SPRINKLER PLAN-Model.jpg
 

Bowling Green State University Sprinkler System Design & 3D Coordination  

 

 

 
DETAIL SP PLAN-Model.jpg
basement.PNG
1ST FLOOR SP PLAN-Model.jpg
2ND FLOOR SP PLAN 2ND EDITION-Model.jpg
3RD FLOOR SP PLAN-Model.jpg
4TH FLOOR SP PLAN-Model.jpg

Northern Sign Building Sprinkler Plan

 
 
Northern sp-100.PNG
Northern sp-101.PNG
Northern sp-102.PNG

Blossom Spring Assisted Living SP Plan

 
 
SP-100.PNG
SP-101A.PNG
SP-101B.PNG

Visions Vocation Calculation & Sprinkler Plan

cal1.PNG
cal3.PNG
cal2.PNG
cal4.PNG
notes.PNG
1st floor.PNG
2n floor.PNG
3rd floor.PNG